Italiano
150.000 €

Villa in vendita a Nettuno (RM)

Appartamento in vendita • Nettuno (Nettuno) - Via Lago Di Como, 42
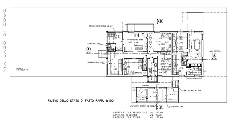
PRIVATO VENDE- Villa di mq 190 a Nettuno, a pochi passi dalla Via Nettunense, in Via Lago di Como, 42 dislocata su un unico livello e immerso in un rigoglioso giardino privato di 350 mq. Offre comodità con posti auto, cantina, magazzino e un locale dotato di forno a legna.L’immobile, da ristrutturare, è una vera tela bianca: la sua struttura consente di trasformarlo in due unità abitative indipendenti, grazie ai doppi ingressi, due cucine e quattro bagni. Il tutto è proposto ad un incredibile prezzo di soli € 150.000,00 mutuabili.
Non perdere l’occasione di visitare questo immobile
Contattaci subito!

Studio Mi.Eli. and Associates ltd
POMEZIA (RM)
Tel. 06/83778285
Cell. 340/5355446

Caratteristiche principali
Codice
V004413
Città
Nettuno (Nettuno)
Categoria
Appartamento
Prezzo
150.000 €
Locali
8
Bagni
4
Mq
190
Posti auto
1
Piano
Terra
Classe energetica
F
Stato Immobile
Da Ristrutturare
Grado
Medio
Raffrescamento
Split
Infissi
Legno
Serramenti
Discreto
Persiana
Tapparella PVC

Accessori: Aria Condizionata, Porta Blindata

Mappa
Via Lago Di Como 42, Nettuno (RM)
Condividi su
Cookie preference